天然木をふんだんに使った
規格住宅「ふたり」で
夢の「平屋」暮らしを
スタートしませんか?
渡邊工務店の天然木で
建てる
規格住宅「ふたり」
ライフスタイルに合わせて選べる
さまざまな「平屋」暮らしを
お値打ち価格でご提供します。
規格住宅「ふたり」はこんな方に
オススメです
- 天然木を使った家に住みたいけど費用が合わない
- 家族構成的にたくさんの部屋はいらない
- 生活の中で階段の昇り降りは最低限にしたい
- 憧れの平屋暮らしがしたい
- 平屋で暮らしたいけど収納部屋も欲しい
- 子供が巣立ったので健康に自立した暮らしがしたい
FEATURE「ふたり」4つの特徴

シンプルで
無駄の無い設計
「ふたり」は小さく建てて、豊かに暮らす。飾らずに、快適に。
コンパクトで無駄のない間取りに木の魅力をふんだんに盛り込んだ人気シリーズです。
暮らしやすさを重視したシンプルな設計で狭小地にも対応。広すぎないのでお財布にも優しい。特にこれからのおふたりの生活をお考えのシニアの皆様や、ミニマルに暮らしたいとお考えの若いご夫婦に喜ばれています。

規格住宅だからこそ、
こだわりの天然木の家が
リーズナブルに購入できる
天然木の家でありながら、規格住宅にすることで、リーズナブルな価格を実現。
規格住宅には他にも「工期が注文住宅よりも短い」「完成後のイメージのギャップが少ない」などのメリットがあります。
お値打ちかつ価格が明瞭な「ふたり」なら、建築費用を抑え、趣味や旅行などを楽しめるゆとりある生活を送ることができます。
外壁×屋根×玄関ドアの
組み合わせだけでも
15,000通り以上
自分だけの平屋が
建てられる
規格住宅だとどうしても自由なデザインにできないと思われがちですが、「ふたり」では外壁、屋根、玄関ドアなど豊富なカラーラインナップをご用意。
オプションにより、更に多くのラインナップからお選び頂く事も可能です。
自分だけの個性が光る平屋を建てることができます。

平屋の施工実績が豊富な
渡邊工務店による施工
渡邊工務店では110余年に渡って研鑽を重ねた確かな技術で魅力ある家を建て続けて参りました。
白鳥庭園「清羽亭」、上野天満宮「晴明殿」など、高い技術力が求められる建築物も施工しており、平屋の施工実績も豊富です。
自社専属の熟練大工が匠の技で建てる「ふたり」は価格以上の価値がある規格住宅です。
ABOUT「ふたり」は
人生100年時代に適応した何歳になっても
健康に暮らせる家
暮らしを豊かにする家が
住む人の健康な
未来を実現
近年日本人の平均寿命は高くなっており、健康的な日常生活を営める期間である「健康寿命」の平均は平均寿命よりも10年前後も短いと言われています。
これは健康寿命を過ぎてから亡くなるまでの10年もの間、健康ではない状態で生活しているということです。
「健康」と「住まい」は密接に関わっています。
室内空気、睡眠環境、いるだけでリラックスできる庭、転倒などの怪我のリスクを抑えた安全な設計にすることも長く健康を維持するためには大切です。
渡邊工務店の規格住宅「ふたり」は、厳選された素材と考え抜かれた間取り・デザインで、安全で健康な未来を叶える住まいをご提供いたします。
平均寿命と健康寿命の差
厚生労働省「第16回健康日本21(第二次)推進専
門委員会資料」
(令和3年12月)
4 TYPES暮らし方に合わせて選べる4種類の「平屋」暮らし
ふたりシリーズは、Ver.1〜Ver.4をご用意。
ご家族の暮らし方や家族構成によって最適なプランをお選びいただけます。
Ver.1
- (税込1,298万円〜)
※解体工事、地盤改良工事、擁壁工事、外構工事、屋外給排水工事、
設計料、照明、カーテン等は含まれません。
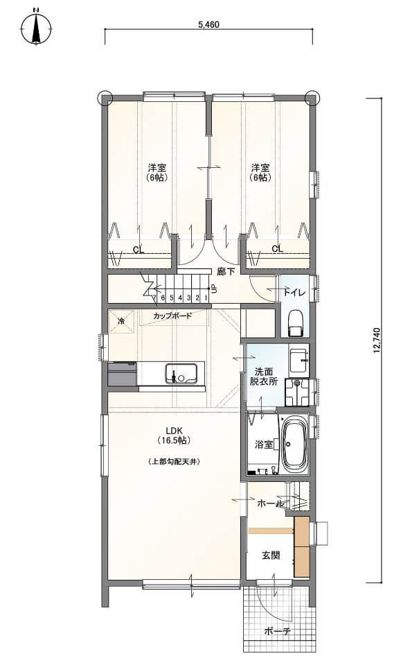
シンプルで無駄がない造りで、狭小地でも建てられます
- ※敷地は、問口8,000mm奥行き20,000mmで作成。
- ※現場状況等により、建築可能か変わる為、詳細はスタッフへご確認ください。
好みに合わせて
間取りや屋根形状をお選びいただけます。
※ご要望に応じ軽微な間取り変更も可能です。詳細はスタッフへご確認ください。
片流れ
3.5間×4.5間
- 1,180万円
- (税込1,298万円)
仕様
- 床面積/50.95㎡(15.38坪)
片流れ
4間×4.5間
- 1,280万円
- (税込1,408万円)
仕様
- 床面積/59.62㎡(18.0坪)
4間×5間
- 1,380万円
- (税込1,518万円)
仕様
- 床面積/66.24㎡(20.0坪)
切妻
4間×4.5間
- 1,380万円
- (税込1,518万円)
仕様
- 床面積/59.62㎡(18.0坪)
4間×5間
- 1,480万円
- (税込1,628万円)
仕様
- 床面積/66.24㎡(20.0坪)
CONTACT
お問い合わせ
「ふたり」のことがもっと分かる資料・展示場をご用意。
まずはお気軽にお問い合わせください。
Ver.2
- (税込1,804万円~)
※解体工事、地盤改良工事、擁壁工事、外構工事、屋外給排水工事、
設計料、照明、カーテン等は含まれません。
「平屋」暮らしにゆとりが生まれる
ロフトのある住まい
暮らしにゆとりが生まれるロフトのある住まい。
ふたりの、家族の時間が丁寧に流れる空間。
開放的な間取りに季節の移ろいを取り込み、優雅な暮らしを実現。
好みに合わせて
間取りをお選びいただけます。
※ご要望に応じ軽微な間取り変更も可能です。詳細はスタッフへご確認ください。
健康で快適な暮らしを
いつまでも
段差の幅を狭くした設計で転倒のリスクを軽減します。
自然光をたくさん取り込むことで生活リズムが整います。
天井が高く、広い空間は心にゆとりをもたらします。
三州の平版陶器瓦は耐候性・耐久性・遮熱性に優れた高品質な屋根材です。
断熱性能に優れた樹脂サッシと遮熱効果のあるLow-Eペアガラスで、夏は涼しく、冬は暖かい暮らしを実現します。
床材は、1階・2階共に無垢の床材を採用。天井には杉の美しい木目が広がり、無垢ならではの木目や温かさ、柔らかさが、生活を快適にしてくれます。
CONTACT
お問い合わせ
「ふたり」のことがもっと分かる資料・展示場をご用意。
まずはお気軽にお問い合わせください。
家にいながら
「平屋」暮らしを体感!
まるで実際に展示場に来たような臨場感を是非ご体験ください
VOICEお客様の声
実際に「ふたり」を建てた
お客様の声を紹介します
30代 女性
規格住宅でもいろいろな住まいの希望を叶えてくれたので家造りの楽しさを味わうことができました。
収納スペースも十分で、どこにいても家族の顔が見られる風通しの良い空間です。
60代 男性
来客の方には木の香りと上質な木質感が好評です。屋根裏の無い造りで、夏場の暑さが心配でしたが、シンプルな間取りの為、少し空調を追加しただけで上階でも快適に過ごせます。これからの老後の平屋暮らしが安全で快適になりました。
50代 男性
以前の住まいは、家族構成や生活様式の変化に伴い、水廻りや間取りの使い勝手に不満がありました。
新しい住まいになってからは広々とした空間と動きやすい間取りにとても満足しています。
50代 女性
元々住んでいた家から近く、実績も十分で安心できることから渡邊工務店に施工を依頼しました。
最初は費用の面で心配でしたが、予算内で建てられて満足しています。
特に味わいのある木目が気に入っています。
※家造りを検討中かつ、当社展示場に初めてご来場いただき、アンケートにご協力いただいたお客様限定とさせていただきます。
※一家族様につき1回とさせていただきます。
まずはお気軽にお問い合わせください。
CONTACT
資料請求・展示場予約はこちら

